
作者
隆基二手钢结构飞鑫
隆基二手钢结构付秀英
介绍
随着建筑行业的快速发展钢结构pkpm截面优化,对结构设计的质量要求越来越高,设计周期也越来越短。 如何在有限的时间内找到最优的结构方案一直困扰着广大结构设计师。 PKPM-AID可以自动调整结构模型到指定的目标。 它能帮助我们解决这个问题吗? 因此,本文以某钢结构工程为例,探讨PKPM-AID在结构方案比选中的价值。
一、项目概况
”
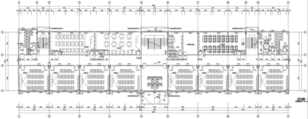
本项目为位于辽宁省盘锦市的钢框架结构教学楼。 抗震设防烈度7度0.15g,设计地震分组为II级,建筑场地类别为II类。 该建筑地上5层,总高度19.5m。 建筑典型柱网为9.6mx8m、9.6mx7.2m,单梁布置。
2、结构方案
”
建筑轴网已确定,提出两种结构方案:方案a为四排柱结构方案,柱距7.2m;方案a为四排柱结构方案,柱距7.2m。 B方案为三排柱结构方案,柱距10.6m。
利用PKPM建立两种方案的初步结构模型,优化截面,比较用钢量。

图1 盘锦市某教学楼标准平面图


Plan A 四排柱结构模型示意图
Plan B 三排柱结构模型示意图
图2 盘锦市某教学楼钢框架结构模型
3. 首选目标
”
① 调整超限,利用AID截面优化功能,消除a、b两个方案的初始超限成分。
方案a、b的模型布置及初始应力比结果如图3所示:方案b抽柱后,梁跨度过大,中心柱应力变大,梁柱较多。柱应力比超过极限,需要加强。 大截面来解决。
同时,按照建筑净高要求,中间走廊y向梁高度不得超过700mm。




方案A 四行列方案
B方案 三排柱方案
图3 方案a、b的典型柱跨平面布置及计算结果。
②优化构件应力比,减少用钢量,使两种方案达到更好的状态进行比选。
从图3可以看出,方案a中梁构件的应力比普遍较小,有很大的优化空间; 方案b中,y向主梁、边梁和小跨次梁也有一定的优化空间。 两个方案初始模型的框架柱截面均已取最小为400*400*16*16,除非超过限制,否则无需调整。
利用截面优化功能调整构件截面钢结构pkpm截面优化,将应力比控制在相似范围内,并比较两种方案的用钢量。
4、优化思路
”
方案a的典型柱跨主次梁应力比相对较小。 为了控制净高,主梁替代截面高度设定为500~700mm。 另外,建筑建议梁宽与墙体一样厚,以利于隐蔽,因此控制了主梁的替代截面宽度。 为200毫米; 次梁可选截面高度为400/500mm,梁宽也为200mm。 在此基础上,通过控制腹板翼缘厚度增加截面,均满足宽厚比和高厚比要求。
b方案中y向主梁、边梁和小跨次梁应力比过小。 为满足建筑要求,主次梁可选截面范围与方案a相同。 可选钢柱箱截面为400*400和500*500。
两种方案的组件指标约束设置如下:


图 4. 组件约束设置
5. 对比结果
”
优化后,B计划所有超限部分均已调整。 A方案整个建筑的钢材用量减少了12%。 两个方案整栋建筑钢构件应力比统计结果相似,总体结构指标仍满足规范要求。
①超限构件全部淘汰:方案b中原100+超限构件全部调整,满足承载力要求。



元件超限调整流程
调整后前后梁应力比对比
图5 方案b中超限成分的调整
②经过断面优化,两种方案总体指标均满足要求。 调整前后对比如下:


a计划调整前指标
b计划调整前指标


A计划调整指标
b计划调整指标
图6 两个方案调整前后总体指标对比
③两种方案钢构件在整个建筑中的应力比统计结果相似,接近优化约束0.95。 通过比较用钢量,可以完成方案优化:




A方案优化前后梁应力比统计
b方案优化前后梁应力比统计
图7 两种方案模型优化前后梁构件应力比统计对比。


A方案用钢量为523.32t
b方案用钢量为551.62t
图8 两种方案优化后钢耗对比
从经济性上看,方案a用钢量为523.32t,方案b用钢量为551.62t。 计划a使用较少的钢材;
净高控制方面,穿越走廊的y向主梁,a方案高度为500mm,b方案高度为700mm。 A方案也比较合理,可以有效避免管道造成梁腹开孔。
因此,最终决定采用A方案,即四排柱的结构方案。
六、总结
”
1. PKPM-AID仅需几分钟即可排除所有超限成分,方便、快捷、高效;
2、利用PKPM-AID软件寻找最经济的截面,同时调整超限;
3、使用PKPM-AID软件,可以快速将各方案的模型调整至最佳,比较钢耗,协助设计者选择最佳方案。
作者:费鑫、隆基二手钢结构、傅秀英、隆基二手钢结构