
来源:
dop设计(ID:dopdesign)原创
作者丨dop设计
编辑| 玲子
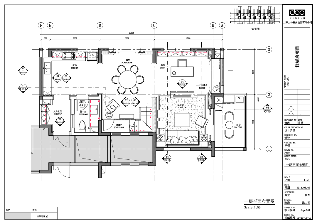
平面图纸是设计方案的第一步,也是整个设计的灵魂。 图纸深化过程是对设计师综合能力和思维方式的双重考验。 那么,我们在平面设计过程中审图时应该怎么做呢?
今天我们从以下两个方面来谈谈图形系统的绘图审查:
1.图形系统的绘图审查思路
2、图形系统审图要点

图形系统的绘图审查思路

来源:
在进行平面系统审图流程之前,首先要了解审图的相关思路,大致可以分为:知识储备→原则标准→操作方法。
1、知识储备
在做审图之前,最基本的就是对整个流程和内容有一个知识储备。 即首先要了解平面深化图的表达内容和绘制内容,这样才能发现问题、解决问题。

A。 表达的内容是什么?
通常平面图包括:隔断墙(这个往往是最容易忽视的,但却是最重要的内容)、固定家具和活动家具、墙面造型(即成品面)、门、窗(幕墙) 、隔断、楼梯(台阶)、消防栓、管井、电梯等。
b. 绘图内容是什么?
绘图的内容相对复杂,主要用于表达设计意图、管理项目和指导施工。 因此,通常主要包括以下内容:

△图纸示例
①图纸内容:包括图纸标签、图框、编号、图纸数量和图纸尺寸的选择、图纸日期、版本、设计者、特别说明等。
②轴号:轴号顺序、轴号大小,如果是多层平面图,要注意每层平面图的轴号定位、轴号大小等。

来源:
△图纸示例
③文字:空间名称、字体大小、字体样式等。
④门窗号数:门窗号数、类型等的排列和表达。
⑤标注:尺寸标注、点位置标注、图片标题、图号标注等。
⑥索引:柱子、消防栓、墙体等对应的节点施工方法索引标注。

△图纸示例
⑦图例说明:用于区分不同材质或区域的图例、相关图纸说明、设计说明、注释等。
⑧其他标记:楼梯、台阶的高差关系(上下标记)、不同的线条形状、范围指示或功能指示等。
2. 原则和标准
在审图过程中,我们一般遵循先整体后局部、先一般后特殊、先粗后细、反复推敲、方案设计优先的原则。 把握大方向,再征服细节,根据细节进行优化改进,最终达到合理的设计效果。

来源:
同时还必须满足以下要求:
A。 符合行业制图标准及相关法规要求
对行业图纸标准及相关法规要求的理解和理解是设计和审图的基础,也是保证设计和审图规范化的指南。

来源:
△部分标准示例
b. 遵守业主、规划师等设计合作伙伴要求的深化标准
审图是基于对设计理念和意图的深入理解,需要在尊重方案设计和设计效果的前提下进行深入思考。 在保证设计效果的同时,还会结合成本控制,保证设计的准确性和全面性。

来源:
C。 满足施工方需求的详细设计标准
在具体的项目过程中,你会发现地域性对设计也有很大的影响。 我们经常会遇到某些施工材料不通用、方法不合适、价格不符等矛盾。 经过各方的协调和调整,保证了整个设计的可实施性。

来源:
d. 遵守公司制定的深入设计标准和设计师自身的要求。
每个公司都有自己详细设计的标准模板,每个设计师也都有一些自己习惯的好的表达方式。 两者的结合保证了设计的美观性和完整性。

三、操作方法
审图的内容非常复杂。 简单来说,操作方法可以概括为:数据整合、设计配合、图纸制作。
A。 数据整合
将从设计效果、规范标准、造价、施工实施、专业配合等多方面进行综合考虑和综合分析。

来源:
b. 设计协调
与各专业顾问进行设计协调,根据专业建议进行调整,整合一套详细设计图纸。

来源:
C。 图纸制作
审图过程中及审图完成后,根据各项标准要求进行图纸、修改、补充或删除,并对初步图纸进行完善和优化,确保合理性和实施性。

来源:
对于PS更具体的操作步骤,一切都需要立足实际,针对不同项目、具体问题具体分析。

平面系统审图要点

来源:
图纸审查内容较多,可概括为规范标准、功能使用、效果呈现、施工实施、成本控制、图纸表达六大审查点。
接下来我们就通过具体的项目案例来看看在实际应用过程中如何从这六个方面来审核平面系统的图纸!
一、标准
首先要保证图纸的完整性,检查图纸内容是否存在缺陷。 图纸不完整会给后期施工带来很大的不便。 如果建设出了差错,就会互相推卸责任。 同时,图纸也会影响预算报价,因此必须保证图纸的完整性。

来源:
在该酒店项目的审图阶段,我们发现图纸缺少客房床背景墙的金属造型节点。 如果没有,在最终施工过程中该位置可能不会进行墙体建模。

△图纸示例
因为大多数施工单位主要是根据图纸进行。 如果是在效果图上而不是在图纸上,后期很大程度上不会做。 因此,在深入设计的过程中,需要全面、完整地完成每一步。 每一个设计都被表达出来。

△图纸示例
同时我们在图纸中还发现,隔墙与幕墙连接处缺少封闭方式。
如果不处理的话,会影响最终的效果。 如果后期处理的话,前期这部分的成本就不会预算了,会影响整体的成本。 因此,前期有必要对相应岗位的具体方法进行补充和完善。

△图纸示例
其次,要检查每个设计是否符合设计规范的要求,图纸必须严格按照行业规范和标准进行。 以免影响当地使用效果或造成安全隐患,还可能影响工程验收、工程周期、成本等。

来源:
△部分标准图册示例
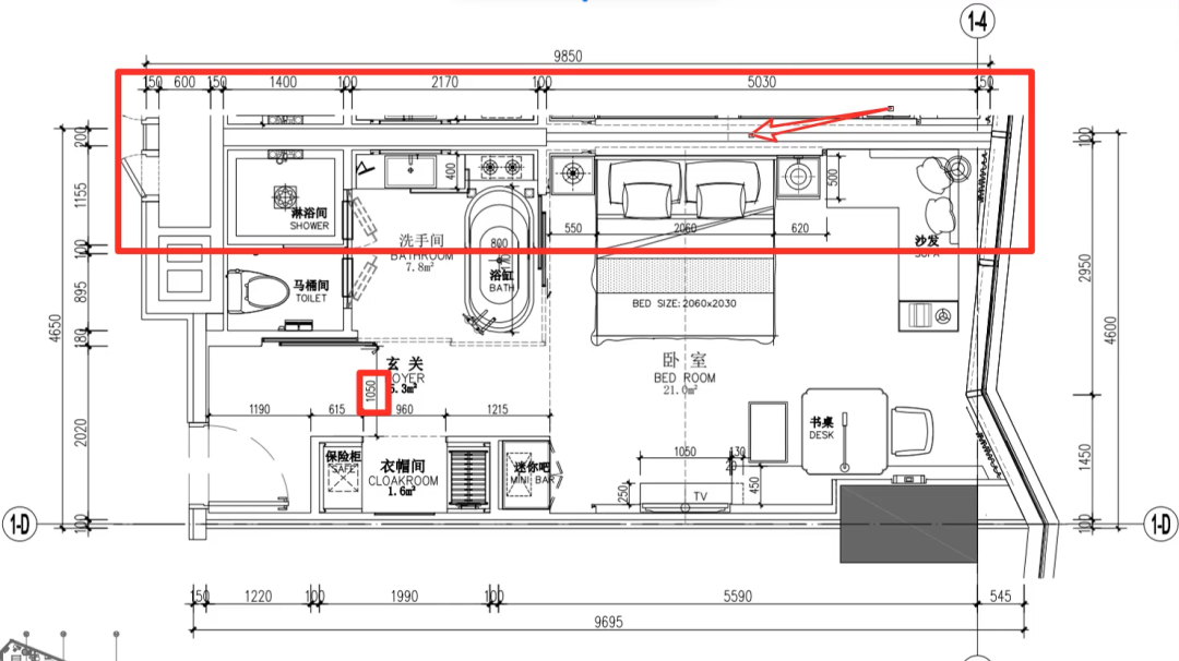
在该酒店项目审图阶段,我们发现平面图上,入口处过道的宽度只有1050mm。 一般来说,根据标准,客房过道的宽度不建议小于1100mm。 经过方案设计与双方沟通后,我们得到了调整后的答复。

△图纸示例
调整后,其他空间尺寸无法调整,因此客房与客房之间的隔断墙厚度减小,实现内走道宽度达到1100mm。 这时,新的问题又出现了——墙体宽度不符合要求。 声学要求和砖石要求。

△图纸示例
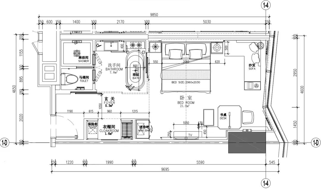
经与声学专家、施工方和规划人员协调,重新确定了墙体厚度和相关方法,使最终方案得以实施和验收。

△图纸示例
这很好地说明了审图在图纸深化过程中的重要性。
2. 功能使用
一些设计师在制定规划时,往往会优先考虑美观,而忽视了实际的功能体验。 如果不考虑周到、以人为本,那么在实际使用时只会发现不便和不适,从而导致整个设计的体验和质量下降。

来源:
△案例
我们再来看看这个酒店房间的案例。 在审图过程中,发现独立浴缸龙头位置不合理,立在过道边缘。 那么这样做会出现什么问题呢?

△图纸示例
首先,它位于人体活动线上钢结构课程设计平面图,很容易造成绊倒。 其次,水龙头距离地漏太远。 如果发生漏水,不利于及时、快速排水。 而且这个位置不适合对龙头进行加固,会导致龙头快速排水。 容易摇晃。

△图纸示例
那么,如何解决优化呢? 我们建议仅将水龙头调节到浴缸的另一端。

△图纸示例
所以你看,一个小小的浴缸龙头的位置设计对实际使用的影响竟然这么大。
因此,如果在深化设计的过程中,能够从实际功能使用的角度来考虑,将会在后期省去很多不必要的麻烦。 这也是深化设计师的价值所在。
三、效果呈现
在审图过程中,也会遇到设计图与效果图不符的情况。 那么这个时候就需要确认到底是以哪一种为准,到底是图纸的表达错误还是方案的修改。

来源:
比如我们的酒店项目,效果图显示衣帽间地板材质是石材,但图纸上显示的是木地板,所以需要沟通确认该位置地板的具体材质。

△图纸示例
在效果呈现上,还有一点就是材料和工艺的选择是否合理。
以石墙效果为例,可以使用的材料有很多,包括真石材和仿石材,如天然石材、超薄石材、PU石材、仿石砖、仿石铝板、仿石铝板等。真石漆等

来源:
△部分素材示例
材料确定后,在一定情况下可以选择的墙面施工工艺有很多种钢结构课程设计平面图,比如天然石材,可以干挂、湿贴、干粘等。
那么在审图过程中,需要综合考虑材料性能、成品面厚度、成本、施工难度、耐久性等因素,看是否匹配、合理。
4、施工落地
在审图过程中,施工落地的一个共同点就是成品面或部分设计尺寸不符合落地要求。
有些详细设计在绘图阶段并没有考虑太深入,但到了施工时才发现目前的技术无法实现,或者即使能实现也需要极高的成本等等。诸如此类的问题必须予以考虑。
比如下面最经典的悉尼歌剧院项目,至今仍被人们诟病。

来源:
△案例
让我们看一下酒店房间的情况。 经过查看规划师提供的图纸,我们发现有一段钢结构墙,一侧是石材饰面,另一侧是木饰面。 成品表面整体厚度仅为55mm。 这是实际施工中的情况。 无法完成。

△图纸示例

△图纸示例
最终我们加深了节点,并考虑到客房尺寸的限制、工艺的限制以及施工误差,最终确定这里墙体的完工面为85mm。

△图纸示例
此外,施工实施中还有一个常见的审核点,就是一些具体的处理方法没有表述或者表述不清晰、不全面。
最终可能会导致施工方不处理、随意处理或不知道如何处理等一系列问题,从而影响最终效果,或者导致无法通过验收,后期补充图纸,增加了成本。

来源:
△案例(缺少异型墙体形状)
例如,在该工程案例中,隔墙与幕墙交接处的封闭方式不明确,也没有详细图纸,导致无法实施。

△图纸示例
如果这个位置不处理的话,从外面透过幕墙就能看到室内未经处理的交接位置,影响整体的美观和体验,同时也会导致酒店品质的大幅下降。

△效果示例
考虑到上述内容,我们与节目方进行了沟通协调,节目方提供了详细的收盘方式图。 在拐角处设置一个凹槽,在凹槽内角处贴上墙布,另一侧用石膏板,涂上深灰色乳胶漆封闭。

△图纸示例
后来考虑到效果的美观性和施工的方便性,我们提出取消凹槽,用木饰面材料封闭两侧。
但施工方建议,从成本角度考虑,靠近外侧的墙体应部分贴木板,其余墙体预留内衬板,然后贴白/黑/木纹色玻璃纸。被粘贴在表面上。

△图纸示例
最终,经过与规划方、施工方多轮沟通协调,决定采用木饰面材料封闭两侧边缘。 程序设计优先的原则在这里也得到了充分的体现。
5、成本控制
有些项目在设计阶段考虑得不够周密,因此可能会出现一些重复设计、过度设计或无效设计的情况。 因此,在深化设计的过程中,需要通过合理的设计来优化和完善设计细节,控制成本。
继续看我们的酒店房间案例,在审图的时候,我们发现所有的顶灯槽都是三角形的。

△图纸示例
但有些区域没有视角,看不到预期的效果,那么这相当于过度设计、无效设计,只会增加成本,所以可以改为普通灯槽方式。

△图纸示例

△图纸示例
在成本控制方面,另一种常见的做法是更换材料或工艺。 比如实木的价格就比较高。 您想要达到解决方案的效果,但成本预算不足。
那么在深化设计的过程中,我们会考虑使用木纹砖、生态木、仿木纹铝板、科技木等能够达到接近实木效果或性能的材料。

△部分素材示例
在审阅图纸时,要注意材料性能是否与房间或空间的功能相匹配。 不要说卫生间使用了防水性能差的材料,这样就失去了材料使用或更换的意义。 流程替换也是如此,这里不再赘述。
6.绘图表达
图纸的表达应规范、准确、完整、美观、全面、清晰等。例如是否有标注错误,是否有字体样式、大小不一致,是否有未区分的线型等。等等,这里就不过多讨论了。

△图纸示例(字体样式和大小不统一)
在审图过程中,需要特别注意是否存在难以理解或容易误解的内容,以免造成信息传递的混乱或错误。

这里我先给大家讲解一下平面图审核的内容。 想要了解更多、加深相关知识的设计师朋友可以了解《DOP施工图内训营4.0高级班》。
课程亮点:

△详细课程介绍请咨询课程顾问代码
该课程适合:

课程讲师:

学生作品:

学过的人都这么说:

课程详细教学内容:
