2021年湖南省中级职称考试即将报名,不少同学已经开始进入学习阶段。 湖南中级职称考试不像一、二建考那样人数较多,而且人数较多,所以学习资料非常齐全。 但中级职称考试在湖南省是单独进行的考试。 参加考试的人不多,所以学习资料也很少,更何况以往的考试题,更是少之又少! 小朱花了一年的时间收集了一些真题材料。
建筑学学习资料

市级学习资料

2018年建筑工程专业实用中级职称考试真题及参考答案
问题一:
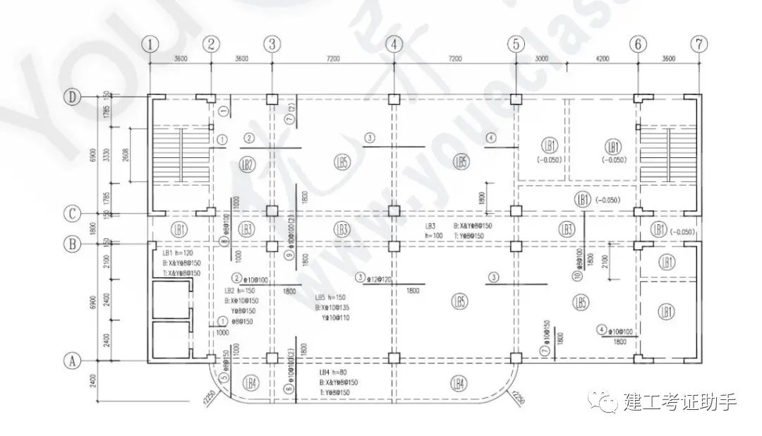
现浇钢筋混凝土框架结构综合楼,地下两层,地上16层。 负一、二层及首层高度均为4.5m。 二层层高4.2m。 上层每层高度为3.6m。 ,屋顶塔高3.3m,建筑总高度59.07m。 综合楼某层现浇楼板施工图如下图所示。 梁板混凝土强度等级为C30钢结构验收规范中关于焊缝等级的几个概念,框架柱混凝土强度等级为C40。 梁、板、柱纵向钢筋均采用HRB400级钢筋,梁、柱箍筋采用HPB300级钢筋。 混凝土保护层厚度:板15mm,梁、柱25mm。 抗震设防烈度为6度。 请根据已知条件和图中信息回答下列问题:

1.(判断题)根据现行《简洁结构设计规范》钢结构验收规范中关于焊缝等级的几个概念,编号LB2的板应设计为单向板(B)
A、正确
B、错误
2、(判断题)混凝土保护层厚度是指钢筋外缘至构件表面混凝土的距离(B)
A、正确
B、错误
3.(判断题)建筑物所在地区抗震设防烈度为6度,无需进行抗震设计(B)
A、正确
B、错误
4、(判断题)根据图中信息,LB5板厚度为150mm,板上部钢筋:X方向纵筋Φ10@130,X方向纵筋Φ10@130 Y方向Φ10@110(B)
A、正确
B、错误
5.(单选题)为防止现浇板因配筋不足而损坏,下列选项正确的是(D)
A. x ≤ xibh0
B、x≥Σbh0
C.As≥ρminbh0
D、As≥ρminbh
6、(单选题)HRB400级钢筋的强度指标如下。 计算板配筋时应使用(C)。
A、屈服强度标准值400 N/mm2
B、极限强度标准值540 N/mm2
C、抗拉强度设计值为360 N/mm2
D、抗压强度设计值360N/mm2
7.(单选题)图中③轴对应3跨连续梁。 计算其正截面配筋时,总截面应为(A)
A、跨中采用T形截面,支撑采用矩形截面。
B、跨中采用矩形截面,支撑采用T形受力面。
C、中跨及支撑截面均为矩形
D、中跨及支撑均为T型截面
8.(单选题)下列哪个选项不属于(C)节集中评分内容
A、板材尺寸
B. 节号
C.上部贯穿纵肋
D. 下纵肋
9.(单选题)关于延性框架“强节点、强锚固”的设计理念,下列说法正确的是(AD)
A、节点的承载力不应低于其连接构件的承载力。
B、地震频繁发生时,节点应工作在弹塑性范围内。
C、地震频繁时,节点承载力的降低不得危及竖向荷载的传递。
D、梁、柱的纵筋应在节点区域可靠锚固。
10.(多项选择题)设计框架柱时,下列哪种说法是正确的(ACD)
A、柱内力调整应按“强柱弱梁”的原则
B、应控制最小截面尺寸和截面长径比
C.应控制轴压比
D、应控制剪压比
问题2:
在某三层钢结构厂房工程中,采用锤击法打入预应力管基础。 桩帽通过预先准备好的地脚螺栓连接到钢柱上。 上部结构为H型钢柱和热孔H型钢梁的焊接组合。 Q25级,横梁采用高强螺栓连接。 本工程焊接接头焊接等级为二级。该工程由建设单位承包。
根据上述情况,请回答以下问题:
11、(判断题)安装钢柱时,有几根钢柱底部预留的螺栓孔有小偏移。 施工人员用铲子将预埋地脚螺栓安装到位。 (二)
A、正确
B、错误
12.(正确或错误问题)焊接柱底部垫板后,再次浇筑混凝土(A)
A、正确
B、错误
13.(判断题)焊接质量检查时,发现少数部位出现焊瘤。 操作人员做了标记,然后修复。 方法是用砂轮去除多余的焊缝金属(A)
A、正确
B、错误
14.(判断题)由于安装螺栓数量不足,施工方认为高强螺栓的性能优于安装螺栓,所以最后采用高强螺栓作为安装螺栓四个节点。 (二)
A、正确
B、错误
15、(判断题)安装第一层钢筋时,下午进行高强螺栓连接副的初拧紧,次日完成最终拧紧,时间间隔为20小时。 (A)
A、正确
B、错误
16.(判断题)钢结构第三节柱安装时,测量员从第一节柱的轴线引入,确定该节柱的定位轴线。 (二)
A、正确
B、错误
17.(单选题)下列关于焊接H型钢翼缘板接头与腹板接头位置的叙述正确的是(B)
A、在同一平面上
B、错位不应小于200mm
C、错位不应大于200mm
D、两者之间的距离没有要求
18(单选题)一层梁柱间现场安装时,少数高强螺柱不能自由穿入螺栓孔。 下列处理该情况的方法不符合规定的是(A)
A. 气割、扩径
B. 用刀修整螺栓孔
C、扩孔数量须经设计单位批准
D、扩孔后的孔径不应超过螺栓直径的1.2倍。
19、(单选题)根据现行《钢结构工程施工工程量验收规范》的要求,本工程焊缝表面不得有缺陷(ABC)
A、裂缝
B. 焊瘤
C. 底切
D、夹渣
20、(单选题)下列采用砂轮磨削高强螺栓连接摩擦面的方法中,哪些符合现行《钢结构工程施工规范》(BD)的要求
A、研磨方向与受力方向一致
B、研磨范围为螺栓孔直径的4倍。
C. 在处理过的摩擦面上作相应标记或涂漆。
D、保持连接摩擦面干燥、清洁。
以上是历年中级职称考试的一些内容。 小朱老师会持续更新相关考试。 如果有任何疑问,可以留言!
