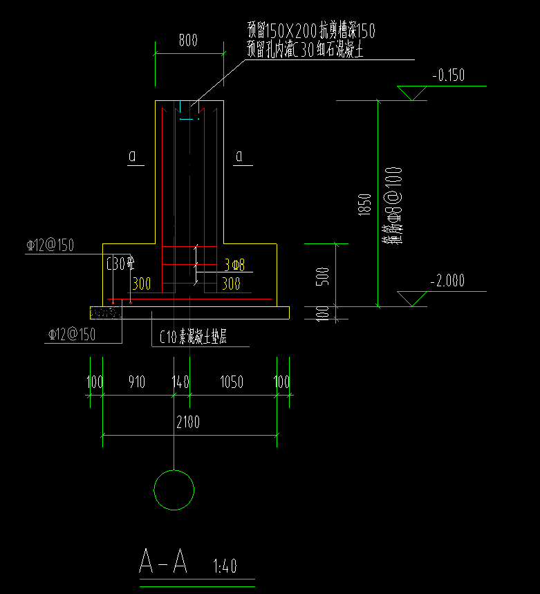
钢结构钢柱基础是专门为安装钢柱而设计的基础。 其特点不仅是基坑深,而且基础下设置垫层钢结构建筑特点,埋设地脚螺栓。 这些设计可以确保地基的稳定性和耐用性。
钢柱基础是用于安装钢柱的基础。
钢柱基础的特点:1; 基坑很深。 2:基础下面有缓冲层。 3:埋地脚螺栓等。
厂房基础施工测量方法及步骤如下:

1、采用正反镜法对坐垫中心线进行浇铸调平。 首先将经纬仪中心引导至中心线上,然后投点; 测量固定架外框四个角的四点标高进行找平。 垫层混凝土表面
2、固定架进行中心线浇铸及调平
3、地脚螺栓安装及标高测量
4、测量支撑模板并浇筑混凝土

钢结构基础的最大特点是可以适应不同地形的要求。 这是因为钢结构基础是由多根独立的钢柱组成,这些钢柱可以根据地形的起伏进行调整,以达到基础的平衡。 另外,钢结构基础可以根据建筑物的高度进行不同程度的加固,从而提高整个建筑物的稳定性。
其次,钢结构基础施工周期短,施工难度低,可大大缩短工期。 这是因为钢结构基础的构件工序是在工厂进行,然后在现场组装。 这样不仅可以减少现场施工时间,还可以避免施工中许多不可预测的因素,提高施工效率。
最后,钢结构基础也是可拆卸的钢结构建筑特点,方便后期维护和升级。 由于钢结构基础是由多根独立的钢柱组成,如果后期需要维护或升级,只需要更换一根钢柱,无需拆除和重建整个基础。
你看,钢结构基础不仅具有传统观念中稳定性好、施工方便等优点,而且还具有适应性强、工期短、可拆卸等诸多优点。 未来,钢结构基础将成为建筑领域的重要趋势。 你怎么看待这件事? 快来留言分享吧!